Kontorslokal att hyra på Herculesgatan 13 i Järfälla

Passade inte denna lokal? Klicka här så hjälper vi dig att hitta en bättre, kostnadsfritt!


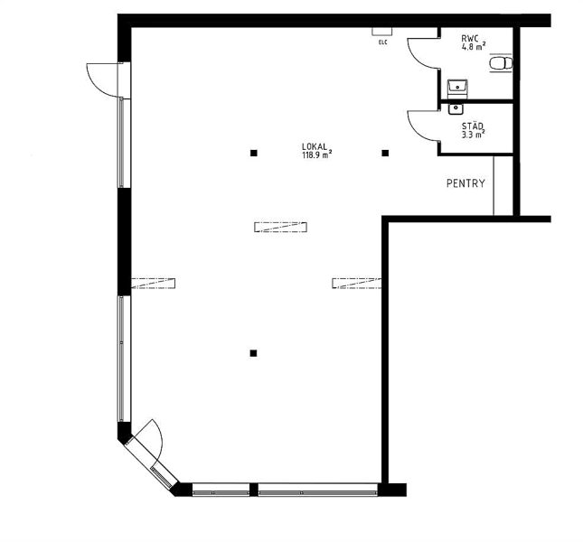
Lokalyta127 kvm
Momsad lokal Nej



Beskrivning av lokalen

Nyproducerad lokal i navet på händelsernas centrum. Här har man en unik möjlighet att satsa på en ljus framtid! Tillsammans med fastighetsägaren har ni möjlighet att anpassa lokalen till den önskade verksamheten. Lokalen är belägen på markplan med ingång från gatan och har stora fönsterpartier med mycket ljusinsläpp. Lokalen kommer att hålla väldigt hög standard och fastighetsägarens fokus är att alltid sätta hållbara lösningar i första hand varav byggnaden kommer att vara Svanenmärkt. TILLTRÄDE: Omgående. eller enligt ÖK FASTIGHETSBETECKNING: Barkarby 2:60 BYGGÅR: 2021 PLANLÖSNING: Nybyggd lokal med flexibel planlösning som går att anpassa enligt önskemål. UPPVÄRMNING: Fjärrvärme VENTILATION: FTX MILJÖCERTIFIERING: Svanenmärkt Den klassiska konsumentmärkningen ”Svanen” finns även för byggnader. Småhus, flerbostadshus och förskolebyggnader kan Svanenmärkas. För att bli Svanenmärkt ska byggnaden uppfylla särskilda krav på byggprocessen, materialval och energibehov. Här tas hänsyn till hela tillverkningsprocessen – från råvaror till färdig byggnad. SKYLTLÄGE: Lokalen ligger i bottenplan i hörnläge med bra skyltläge i två vädersträck. FÖRETAG I NÄRHETEN: Ica Maxi, Systembolaget, Intersport, Elgiganten, Ikea, Barkarby Quality Outlet mf. PARKERINGSMÖJLIGHETER/GARAGE: Garage och parkring i anslutning. NÄRSERVICE: Barkarby är en av norra Europas största och mest expansiva utvecklingsområde och här satsar man stort. Fördelen här är att det redan finns etablerad handel och servis som redan är uppbyggt och väl fungerande så som skolor, gym, bibliotek, vård och bra kommunikationer. Läs mer om områdets utveckling på www.barkarbystaden.se KOMMUNIKATIONER - Gångavstånd till Barkarby pendeltågsstation - Bussar - Direkt anslutning till E18 - Nya tunnelbanestationen kommer ligga 100 meter från fastigheten


Vad som ingår i lokalen

icon-for-kitchenKök/pentry

Herculesgatan 13, Stockholm

Marker
Leaflet © CARTO contributors